When it comes to building stairs the HARDAZ Steel Stringer range makes the job easier than ever.
Made for Australian standards, our quality range of stringers accommodates the DIY enthusiast as well as tradies needing to get the job done.
The range comes in two, three, four and five step sizes with the option of a merchandising solution to find a place in your store. With this range of product it gives your store the opportunity to not only sell them timber tread for stairs, but the complete solution for stair case job.
- Convenient and easy to install
- Available off-the-shelf in 2 to 5 tread stringer sets
- Hot-dip galvanised
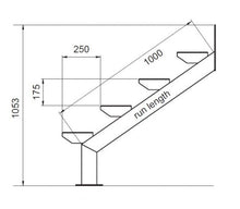
- Standard with 175mm rise
- Rise is at an angle of 35 degrees
- Designed to take a maximum tread width of 1000mm
- To suit tread 250mm in depth

